28396 350th Avenue, Unit 3, Battle Lake, MN 56515

$74,500
  • 28396 350th Avenue, Unit 3, Battle Lake, MN 56515 Main Photo

31 Total Photos [Click to View All]

Active
MLS#6809099
STATUSActive PROPERTY TYPECommercial - Business SUBDIVISIONBrown Lk Add SCHOOLBattle Lake

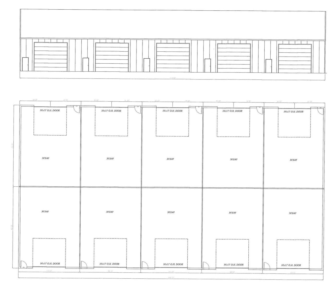
Property Description

OTTER TAIL LAKE 30X40 STORAGE CONDOMINIUM UNITS in a PRIME & convenient location to several lakes (Otter Tail, Deer, East Lost, Twin, Round, and many more) just West of Otter Tail Lake off of county Road 1. Have the freedom of owning your own unit and finishing as you like. These units are 2x6 stick built construction on a concrete slab with thickened edges, 16W'x11H' insulated overhead, 100-amp electric panel, 2x4 shared divider walls, steel wainscot around building, 3' apron, Low HOA dues to cover snow/grounds upkeep, driveway maintenance and shared exterior insurance. Owner/Agent

28396 350th Avenue, Unit 3 | MLS# 6809099

This commercial property located at 28396 350th Avenue, Unit 3, Battle Lake, MN 56515 is currently listed for sale with an asking price of $74,500. 350th Avenue, Unit 3 is located within the Battle Lake school district. Search Battle Lake real estate on www.legacyr.com today.

Property Features

Property Type: Commercial - Business
Fuel Type: Other
Garage: 2
Heating: None
Lot Size: 1.84 Acres
Taxes: $72
Year Built: 2024

Feature Descriptions

Days on Site: 160
Foundation Size: 1200
Lot Dimensions: .84
Parcel#: TBD
Parking: Gravel
Sale Includes: Building
Sewer: None
Units: 10
Utilities: Electric Separate
Water: None

Local Schools

School District: Battle Lake

Listed By / Shown By

Listed By

Agency Name: Lakes Family Real Estate/Otter Tail Real Estate
Agency Phone: 218-736-4263

Shown By

Agency Title: RE/MAX Legacy Realty
Agency Phone: 701-492-5050

IDX logo

Login to My Homefinder

Pixel